買う:湘南ライフタウンのマンション
-
大庭
【中古マンション】2,499万円 -
交通 / 東海道線本線「辻堂」駅バス8分 南センター前 停歩1分
2026年5月新規リノベーション予定 専有面積72.90u 14階建の13階部分のお部屋です 耐震適合証明書取得可能物件です(住宅ローン控除の対象になります)
物件詳細
| 物件種別 | 中古マンション | 所在地 | 藤沢市大庭 |
|---|---|---|---|
| 交通 | 交通 / 東海道線本線「辻堂」駅バス8分 南センター前 停歩1分 | マンション名称 | 湘南スカイハイツ4号棟 |
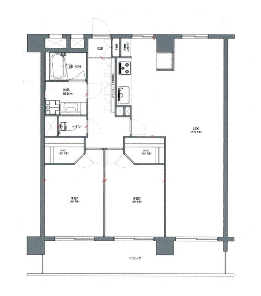
| 間取 | 2LDK | 専有面積 | 72.90m2 |
| 価格 | 2,499万円 (税込) | バルコニー面積 | 12.47m2 |
| 建物構造 | SRC造 | 規模 | 14階建 13階部分 |
| 総戸数 | 308 | 築年月 | 1977年3月 |
| 現況 | 空部屋 | 管理費 | 9300 |
| 修繕積立金 | 15700 | 管理形態 | 一部委託 |
| 土地権利 | 所有権 | 駐車場 | 有(空き有 月額7000円) |
| 引渡日 | 相談 | 情報公開日 | 2026/04/12 |
| 取引態様 | 媒介 | 情報更新日 | 2026/04/12 |
| 物件番号 | brm532 | ||
| 設備 | エレベーター | 備考 | - |



