• 会社案内
  • 物件リクエスト
  • 不動産売却
  • 学区情報
  • 不動産用語集
  • お役立ちリンク

買う:湘南台駅

買う:湘南台駅の一戸建

  • 葛原
    新築一戸建
    【新築一戸建】
    3,560万円
  • 交通 / 小田急江ノ島線「長後」駅バス8分 停歩1分

    小田急江ノ島線「湘南台」駅・「長後」の2駅利用できます 浴室暖房乾燥機能付・キッチンには食洗器付 ZEH水準省エネ住宅

  • 現地

    現地

  • 現地

    現地

  • 現地

    現地

  • 現地

    現地

  • 現地

    現地

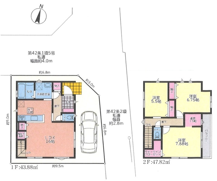
  • 間取

    間取

現地 現地 現地 現地 現地 間取
物件詳細
物件種別新築一戸建 所在地藤沢市葛原
交通交通 / 小田急江ノ島線「長後」駅バス8分 停歩1分 , 小田急江ノ島線「湘南台」駅バス11分 葛原 停歩7分 物件名称葛原新築戸建
間取3LDK 土地面積80.41m2
価格3,560万円 (税込) 建物面積91.70m2
建物構造木造 規模2階建
建ぺい率60% 容積率200%
販売戸数1 築年月2026年7月完成予定
建築確認番号KBI-YKH25−10−3111 接道北側4m公道・東側隣地通路
土地権利所有権 都市計画市街化区域
現況建築中 用途地域準工業地域/
地目宅地 引渡日相談
駐車場 情報公開日2026/02/24
取引態様媒介 情報更新日2026/02/24
物件番号bsh878   
設備本下水・公営水道・プロパンガス 備考-
資料請求はこちらから