• 会社案内
  • 物件リクエスト
  • 不動産売却
  • 学区情報
  • 不動産用語集
  • お役立ちリンク

買う:事業用物件

買う:事業用物件

  • 渋谷2丁目
    収益物件
    【収益物件】
    12,500万円
  • 交通 / 小田急江ノ島線「高座渋谷」駅 徒歩10分

    月額想定賃料573,000円 年間想定賃料6,876,000円 予定利回り5.5% 「高座渋谷」駅徒歩10分

  • 現地

    現地

  • 現地

    現地

  • 現地

    現地

  • 現地

    現地

  • 現地

    現地

  • 現地

    現地

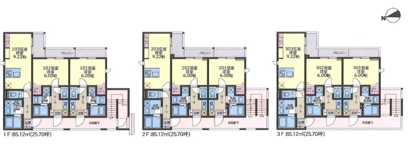
  • 間取

    間取

  • 配置図

    配置図

現地 現地 現地 現地 現地 現地 間取 配置図
物件詳細
物件種別収益物件 所在地大和市渋谷2丁目
交通交通 / 小田急江ノ島線「高座渋谷」駅 徒歩10分 物件名称渋谷2丁目新築売りアパート
間取- 土地面積144.98m2
価格12,500万円 (税込) 建物面積255.36m2
建物構造木造 規模3階建
建ぺい率60% 容積率200%
販売戸数- 築年月令和7年3月完成予定
建築確認番号KBI-SGM24-1-2751 利回り5.5%
土地権利所有権 接道南側6m公道
現況建築中 都市計画市街化区域
地目宅地 用途地域第一種中高層住居専用地域/
駐車場 引渡日相談
取引態様媒介 情報公開日2026/02/01
物件番号bjs213 情報更新日2026/02/01
設備本下水・公営水道・プロパンガス 備考-
資料請求はこちらから